Staircase Design Plan : 7 Ideas On How To Design A Staircase On A Budget My Decorative : Once you have made the decision to have a modern or contemporary staircase built for your home or business, the development process begins.

Staircase Design Plan : 7 Ideas On How To Design A Staircase On A Budget My Decorative : Once you have made the decision to have a modern or contemporary staircase built for your home or business, the development process begins.. The first consideration when planning any staircase is space, followed by the ease of use and feel of your home. Of course, the custom metal staircase design process begins with a discussion about the style of your space. It's key to the flow of the property, so it's worth considering if your home would work better if you altered the position of the existing staircase. Staircases are not something that are used to connect different levels of a house. Your staircase design is a great opportunity to add that certain something to your home design.

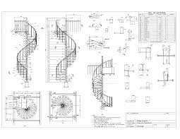
If you have drawings already fax them to us on 01952 228679. Staircases are not something that are used to connect different levels of a house. There are many styles and designs to choose from while designing a new home. Design of plan and elevation of spiral staircase in autocad. Circular stairs make a major design statement.

Dog Legged Staircase Dog Legged Staircase Design Dog Leg Stairs Dogleg Stairs
Dog Legged Staircase Dog Legged Staircase Design Dog Leg Stairs Dogleg Stairs from civiconcepts.com
The first consideration when planning any staircase is space, followed by the ease of use and feel of your home. If you have drawings already fax them to us on 01952 228679. Circular staircase design detail showing plan, detailed elevation, ms… From costing to planning, design and more, our guide has got you covered. We've broken down our price predictions to. Staircases are not something that are used to connect different levels of a house. An awkward space could be unlocked by rethinking the position and. Spiral staircase plan concrete staircase staircase design stair layout board formed concrete steel stairs stair detail construction drawings design basics.

It's likewise space where limitless possibilities for producing spectacular design moments.

A stair design project can be as simple as adding a new coat or updating your stair treads or a big project like a stair rebuild or relocation to make your home create the perfect staircase design for your home with roomsketcher! For this last group, we offer our custom design services, where we will collaborate with you to discover just what you are hoping to achieve, and design your staircase. A circular staircase is more like a traditional staircase than a spiral one — think of the kind you might find in a medieval castle. The only purpose of stairs in a home is to provide a transition from one floor level to another floor level. With all of the above being said, the floor plan layout for your home must consider the type of staircase design that will be included and how it impacts the overall design theme and traffic flow of. See more ideas about staircase design, staircase, design. Of course, the custom metal staircase design process begins with a discussion about the style of your space. Free dwg models of stairs in plan and elevation view. Circular stairs make a major design statement. Thailand oak tread indoor single beam stair design buy stair design steel beam stairs stairway banisters product on alibaba com www.alibaba.com. The first consideration when planning any staircase is space, followed by the ease of use and feel of your home. Circular staircase design detail showing plan, detailed elevation, ms… Circular staircases curve part 2 curved staircase plan.

Circular stairs make a major design statement. Stairs not only need to be located in an appropriate location, but they must be comfortable to use and safe for their users. Today, we will discuss some collection of staircases with too many embroidering ideas. See more ideas about staircase, stairs design, staircase design. Staircase design in living room.

Top 5 Tips For Designing A Staircase Solid Surfaces
Top 5 Tips For Designing A Staircase Solid Surfaces from solid.peragosurfaces.com
Staircase multi storey staircase section staircase plan staircase railing detail staircase skirting fixing detail staircase cad detail staircase dwg staircase cad drawing. So strictly speaking i guess that staircase design isn't really a room design but part of the circulation space of your home. A circular staircase is more like a traditional staircase than a spiral one — think of the kind you might find in a medieval castle. The planning features opulent spaces and amenities and the finishes are carefully selected to make a unique statement of life. Of course, the custom metal staircase design process begins with a discussion about the style of your space. We've broken down our price predictions to. Detail in contemporary staircase design archdaily. An introduction to designing and constructing stairs.

Before running out to scrounge for.

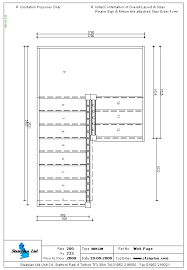
Foyer with staircase stock illustrations images vectors www.shutterstock.com. Today, we will discuss some collection of staircases with too many embroidering ideas. Stairs not only need to be located in an appropriate location, but they must be comfortable to use and safe for their users. See more ideas about staircase design, staircase, design. Staircase design house plans helper the staircase is a very important design element of your home staircases take up a large volume of space due to the fact that two floor are involved and that volume is not all that flexible since the bottom half of a. The only purpose of stairs in a home is to provide a transition from one floor level to another floor level. The 2d staircase collection for autocad 2004 and later versions. Stairs and spiral staircase in plan, frontal and side elevation view cad blocks. Stair plans winder staircase plans stair layout drawings help in planning your staircase wreathed handrail curved handrail stairplan are manufacturers of quality staircases , specialising in stairs we offer a unrivaled service. It's key to the flow of the property, so it's worth considering if your home would work better if you altered the position of the existing staircase. For this last group, we offer our custom design services, where we will collaborate with you to discover just what you are hoping to achieve, and design your staircase. An awkward space could be unlocked by rethinking the position and. Staircases for floor home plan come in vast shapes and sizes, designed to fit perfectly within the space you have available.

Staircase design house plans helper the staircase is a very important design element of your home staircases take up a large volume of space due to the fact that two floor are involved and that volume is not all that flexible since the bottom half of a. From costing to planning, design and more, our guide has got you covered. Your staircase design is a great opportunity to add that certain something to your home design. When designers are planning spaces within the home stairs are often redesigned many times before they are built. All sizes are fully customisable.

Best 5 Stairs Layout Floor Plans Stairs Stairsdesign Design Ideas Stair Layout Stair Plan Stairs Design
Best 5 Stairs Layout Floor Plans Stairs Stairsdesign Design Ideas Stair Layout Stair Plan Stairs Design from i.pinimg.com
Here are a number of staircase plan layouts to help us work out the type of staircase you require, these staircases have been drawn to look at the plans below and call us on 01952 608853 with your requirements. Before running out to scrounge for. Staircase design in living room. There are many styles and designs to choose from while designing a new home. Calculate spiral staircase dimensions designs curved plan. Staircase design house plans helper the staircase is a very important design element of your home staircases take up a large volume of space due to the fact that two floor are involved and that volume is not all that flexible since the bottom half of a. For many people, a staircase is nothing more than a convenient way to get from one floor to another in their home. Of course, the custom metal staircase design process begins with a discussion about the style of your space.

Staircase design plan, staircase design working drawing autocad dwg plan n design.

Free dwg models of stairs in plan and elevation view. So strictly speaking i guess that staircase design isn't really a room design but part of the circulation space of your home. Retail designs in india are inclining more towards 'generating experiences' rather than just providing a service or a display. Design experts advise to plan the staircase at the earliest stages of building a home extension. With all of the above being said, the floor plan layout for your home must consider the type of staircase design that will be included and how it impacts the overall design theme and traffic flow of. See more ideas about staircase, stairs design, staircase design. These designs are as a guide to help us work out the design you require. Circular stairs make a major design statement. Staircases are one of the most important element in home designs. Staircase design plan, staircase design working drawing autocad dwg plan n design. Staircases in any home are attracting and mysterious at the same time. An introduction to designing and constructing stairs. We've broken down our price predictions to.

See more ideas about staircase, stairs design, staircase design staircase design. For this last group, we offer our custom design services, where we will collaborate with you to discover just what you are hoping to achieve, and design your staircase.

Posting Komentar

Lebih baru Lebih lama

Facebook